设计说·第326期 | 116㎡精装大改造,时尚又温馨!
2026-03-26 17:16:40
乐大姐
FM104.8《家在苏州--乐大姐说装修》栏目特邀嘉宾;
项目地址:浅悦静庭
项目面积:116㎡
项目风格:轻法
项目性质:精装修软装搭配
项目状态:已竣工交付
每一次样板房的拍摄,
每一次竣工酒的举行,
不仅仅是装修成果的一次展示,
更是承诺一次又一次的实力呈现。
圆一个理想家居之梦,
筑一方盛满温情的居所。
这个过程中
乐大姐团队和业主相识、相知、相交,
一次装修,一生朋友。
ENJOY YOUR LIFE
● ● ●
轻法风格,给人以温柔治愈,
优雅但不刻意
像清晨的一缕阳光
不刺眼,暖意裹满全身
● ● ●
绿色和暖白色营造出静谧的氛围
拱形元素让客厅空间多了些优雅
阳台打通后,让光线在室内自由穿梭
无论是家人围坐,亦或是好友小聚
都格外惬意…
四方食事,不过一碗人间烟火
往日拥挤的餐厨空间,妥帖满足业主的多元需求后
颜值与功能双在线
绿意缀于其中,眼底尽是清润生机
让每餐都成了味蕾与视觉的双重治愈
卧室以柔白色与绿色为底
当阳光漫入时,满室清透
绿意盎然却不张扬
裹着慵懒轻松的氛围
治愈每一次的休憩时刻
将天空揉碎成蓝色
铺进孩子的房间里
阳光漫入时,空间如同加了一层滤镜
皮粉色的妙处在于,甜而不腻的低饱和度
不张扬不刺眼的色调
搭配浅色系的软装
结束忙碌的一天,窝进这片温柔的粉色里
给人恰到好处的暖意
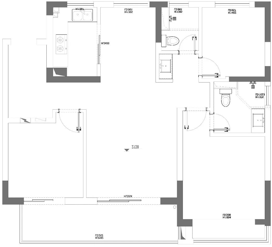
原始户型图 改造后户型图 点击左下方“阅读原文”,即可在线免费观看本案例全景图(360°)。 装修背后的故事 浅悦静庭自住精装房焕新!乐大姐团队做了针对性的户型改造,取消入户占用次卧的鞋柜凹口,用过道错位鞋柜+洞洞板补齐收纳;拆厨房移门设定制岛台,餐厅换卡座+餐边柜破解拥挤、翻倍利用率。贴合女业主偏好,风格方面,摒弃千篇一律,以奶油白为基,缀清新绿与胡桃木,用法式线条、弧度勾勒浪漫,让舒适自住与颜值质感双向拉满。 「 满意度100% 」 ▲乐大姐团队和浅悦静庭业主业主合影留念 拍摄现场,在和乐大姐团队、苏州电视台《第一时间》拍摄老师等聊天的过程中,女业主说:“聊起装修,我们现在住的地方,是父母装的,虽然我们没有参与,但光是看着就觉得好累。最开始他们也是花钱找了人设计的,但那个设计师没有专业的建议,我们怎么说他们怎么做,那我觉得这样我也可以!后来他们又找了楼下邻居,他们正在装修,就一起装了,但也很累很操心。最主要的是我们住进来以后,卫生间出了问题还要返工,一周不能洗澡。后来我在电视上看到一个节目,有关于装修的,真的特别好,会一一指出问题再给到专业的方案,我当时就在想,以后装修我也想要找这样的团队,苏州有没有这样的服务。后来关注到乐大姐团队,感觉她讲得好好,落地效果也很不错,就委托给了你们。那现在亲自体验下来真香啊,整个过程真的非常省心。” ▲乐大姐团队正在拍摄苏州电视台《第一时间》解析样板房装修知识点 女业主接着说:“我老公在外地工作,几乎没有来过。我自己也是,你们约我来现场验收我们才来。而且,你们团队真的有太多让我意想不到的惊喜了,比如说有一次我记得是施工经理拍了个灯带给我,然后告诉我说这个颜色会更搭;还有窗帘装好了,因为开始没想放垫子在飘窗上,后来我买了垫子发现窗帘长了,你们团队就提出按照尺寸改一下长度,这些我想都没想过。还有,因为我个人很喜欢烹饪,对储藏和功能需求很多,上次装洗碗机的人来,他告诉我在我们小区里装了好多洗碗机了,不太好装。我说我们家不一样的,后来他一来看说这样规划真好,几分钟就装好了!对这套房子我想实现的太多了,自己简直无从下手,觉得可能都实现不了,可是你们都帮我们超预期实现了!” ▲浅悦静庭业主设宴宴请乐大姐团队贺竣工之喜 幸福家·点点评 不少业主拿到精装房,常会觉得既定格局下难有发挥。实则不然,只要设计巧思到位,平凡的精装房也能实现脱胎换骨的蜕变。比如本案,开发商交付的是千篇一律的现代风基础款,不仅和女业主心仪的风格相去甚远,心中的诸多个性化功能需求更是让她无从下手,甚至一度觉得难以实现。而乐大姐团队用专业设计打破局限,将业主的每一个期待都精准落地。如今完工后的家,我们在现场看到,早已褪去量产的平庸感,每一处都贴合家人的功能需求与审美偏好。大家的连连称赞固然可贵,但业主一家人满脸的满意与认可,才是对团队辛勤付出的最好回响,更是乐大姐团队的最大价值所在。 END 往期案例回顾 设计说·第319期 | 574㎡法式独栋,生活的散文诗…(上) 设计说·第318期 | 234㎡栖心于雅,中古与侘寂共融! 如果您觉得乐大姐说的内容很有价值 欢迎分享转发至您的朋友圈 让更多的朋友都能轻松装修,自在生活! 当然,您也可以添加乐大姐微信号13390895455 或扫描下方的二维码 说出您的装修难题、让乐大姐为您答疑解惑 不管您是装修完工了 还是即将装修的 或者正在装修的 乐大姐一定知无不言,言无不尽 我们期待与您的交流 设计说·第325期 | 581㎡联排别墅,香奈儿法式风~
设计说·第324期 | 208㎡美得“不像话”,像画!
设计说·第323期 | 574㎡浪漫满屋,雅奢格调~(下)
设计说·第322期 | 406㎡意式独栋雅境,悠然养老~设计说·第321期 | 248㎡上叠,现代笔触绘温存!设计说·第320期 | 142㎡老宅新生,惊艳中古风


