设计说·第327期 | 256㎡克制又自由,谁说这是“家徒四壁”风?
2026-03-26 17:30:40
乐大姐
FM104.8《家在苏州--乐大姐说装修》栏目特邀嘉宾;
每一套作品,都是私人定制
项目地址 / 颐和玲珑
项目风格 / 现代极简
项目面积 / 255.5㎡
项目性质 / 精装修软装搭配
项目状态 / 已竣工
客厅是居者会客的地方;客厅也是家人围坐,放松互动的地方。客厅的意义是情感的流动。
模块化双面沙发,藏着生活的双重可能。一面朝向光影,可沉浸式观影解锁独处浪漫;另一面则是休闲区的社交暖意,让欢笑在陪伴中蔓延。
电视墙与沙发背景以弧线为笔,勾勒空间的流畅韵律。嵌入式柜体承载着实用的巧思,氛围灯晕染出朦胧暖意。墙面侧边弧形过渡,悄然弱化了直角的生硬,让每一处转折都藏着温柔。
阳台,是藏在生活里的治愈角落。一方茶台,晴时沐浴阳光,雨时静坐听雨。或独自放空,或邀三两好友叙旧,茶香袅袅,任惬意在时光里慢慢流淌……
黑白色勾勒利落线条,餐厨相融,打破边界,将空间最大化利用。极简美学藏在细节里,在这个空间烟火气与高级感共生,让每餐都成为视觉味觉的双重享受。
低饱和度的大理石台面,携自然肌理温柔铺陈,弱化了空间边界的生硬割裂感。
门厅作为入户的第一序章,以“台面+柜体”构筑从容缓冲,让归家动线在温柔过渡中,卸下一天的疲惫。
主卧玄关以“柜体+操作台”勾勒动线脉络,让公共区域到私密卧室的转换自然无痕。材质质感的高度统一,搭配功能布局的巧妙呼应,既保留的空间独立,更以细节铺就整体的美感,穿行间尽是从容舒适。
大面积的白,铺陈主卧空间,如云朵般轻盈包裹每一寸角落,过滤掉外界纷扰。柔和的颜色,自然光线漫过时,勾勒出通透洁净的质感,满室清宁惬意,让人一踏入,便可卸下所有疲惫,沉浸在这松弛治愈的氛围里。
柔雾粉晕染全屋,似揉碎的星光撒落角落。软糯质感包裹空间,搭配简约线条与童趣软装,既藏着少女的烂漫心事,又透着治愈温柔,让成长时光在梦幻氛围里,满是纯粹与美好。
以太空元素装饰为视觉核心,宇航员、火箭与星球图案点亮墙面。床尾的积木墙与趣味涂鸦赋予玩乐属性。
柔和色调包裹全屋,简约线条勾勒的“登月”壁画强化主题氛围,顶面太空主题的吸顶灯缀以宇航员装饰,呼应整体风格,构成一个承载孩子梦想的成长空间。
于此静坐办公、潜心阅读,书架上陈列着心之所爱。疲倦时,移步旁侧的小沙发,伴着柔和的光影小憩片刻。墙面的海浪挂画,碧波荡漾,仿佛可以感受到海风的轻抚,让浮躁心绪悄然沉淀…
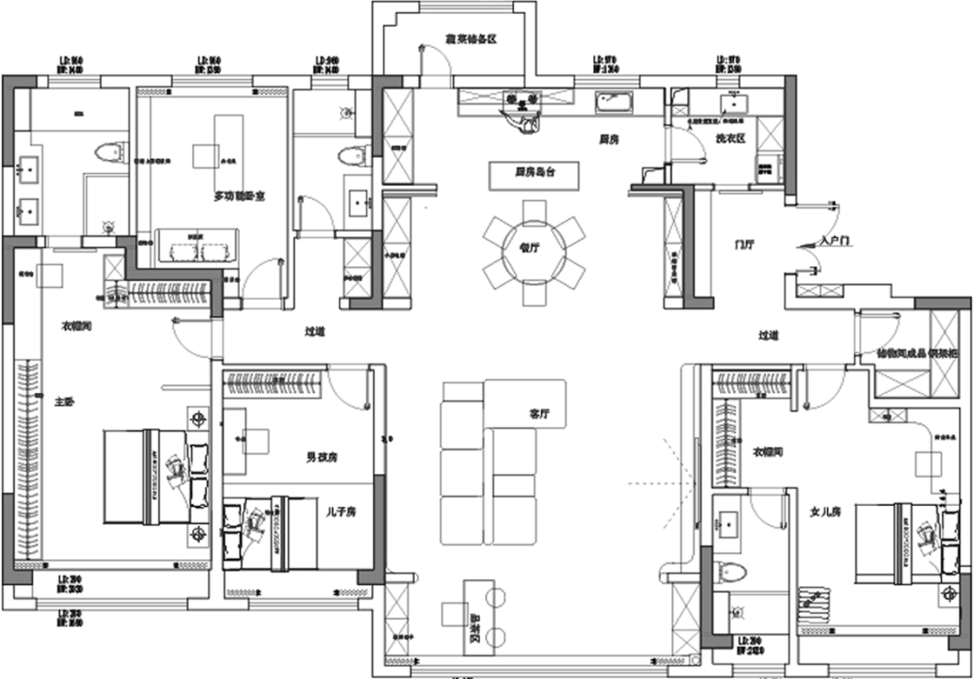
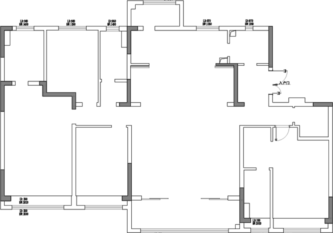
原始户型图
改造后户型图
①拆除南阳台的移门,使格局更加舒展通透,空间感更大,视线可随空间开阔尺度无限延伸。
②将开发商交付时的客餐厅吊顶全部拆除,为契合极简风格,重新吊顶(无主灯设计)
点击左下方“阅读原文”,即可在线免费观看本案例全景图(360°)
https://vr.justeasy.cn/view/d1fl747a5l031e07-1765091140.html


