设计说·第329期 | 265㎡下叠拆光重塑,宋式美学入梦来!
2026-03-26 17:42:21
乐大姐
FM104.8《家在苏州--乐大姐说装修》栏目特邀嘉宾;
项目地址 / 日兴花园
项目风格 / 宋式美学
项目面积 / 264.6㎡
项目性质 / 别墅整装
项目状态 / 正在施工
中式壁画点缀于客厅的沙发背景,恰到好处的留白设计,消解了局促问题,赋予空间轻盈的呼吸感。
一旁的干枝,点缀其间,勾勒出宋式美学独有的淡泊悠远之境。
茶色玻璃制成的楼梯扶手,自带柔和滤镜,在界定空间层次的同时,又丝毫不会阻碍空间的通透感。
客厅跃层的承重柱,本是空间设计的小难题,我们以木饰面温柔包裹,再设框景,让这本是鸡肋的存在,摇身一变,成了点睛的一笔。
阳台一侧的墙面,悬挂一幅雅致的字画,一旁嵌入式的装饰柜,既可收纳日常琐碎,亦可陈列业主钟爱的摆件。
小小的茶室,大大的自在。茶香袅袅,窗外日光斜,把每一个寻常日子过成诗笺上的留白…
一方素净茶桌立于其间,闲暇时候邀友烹茶叙旧,静时提笔挥毫落墨,自在悠然。
柜体半藏半露,兼顾收纳与装饰;开放格间摆上做旧的木墩,一株绿植点缀其间,将心爱茶具陈列,氛围感拉满。一次简约屏风静立,古韵流转,自成风景。
宋韵餐厅,简素清雅。木制的餐桌温润质朴,无需过多的雕琢,只以留白衬出三餐诗意,家人围坐,便是人间清欢。
餐厅临窗,设一方矮卡座,为餐厅添了融融暖意。饭后与家人在此品茗,茶香袅袅间闲话家常,时光都变得柔软。卡座还兼收纳之能,让诗意与实用共生。
一幅长条形装饰画贴餐厅墙面,寥寥几笔勾勒出意境,为烟火食光晕染出了几分清简诗意。
打通厨房两侧墙体,餐厨一体的设计让烟火气与饭香轻松相融,备餐上菜更省心。台面空间随之扩容,满足多样烹饪需求,这层的整体空间也变得格外通透开阔,日常动线自在又顺畅。
电梯厅直面区域采用台面镂空设计,消解了入户的局促感,让空间尽显开阔大气。两侧原生立柱被巧思利用,纽扣射灯与吊线灯错落排布,暖光漫过茶具饰品,氛围感瞬间拉满。
沿柱打造的台面拐角处,嵌入一座做旧实木饰品架,为空间添上几分自然野趣与层次。灯光轻拂饰品枝叶,光影斑驳地落在柱身与台面,赋予整个角落灵动的呼吸感。
棋牌室继续以宋式美学为底色,柜体之间嵌入一幅中式画作为点睛之笔,让博弈空间兼具雅致格调,雅俗共赏。
以一幅字画晕染主卧禅意,再配一盏素雅的灯,柔光轻洒,方寸之间皆是悠然惬意。
主卧造一方地台茶歇小天地,妥帖安放煮茶闲情。山水纱帘如诗如画,作空间的温柔分界,更添一室松弛清雅的韵味。
床尾定制整排收纳柜,扩容储物空间。入户柜贴心预留次净衣区,休憩时可悬挂外套,洗漱时化身便捷准备区,随手收纳包包等日常小物,整洁又省心。
为孩子打造的专属空间里,书桌书柜一体化设计,让学习和收纳更高效。靠窗处用矮柜搭出惬意的读书角,梯柜踏步贴心适配孩子的身高。
转角柜精准容纳打印机,每一寸空间都物尽其用。床头《我的世界》装饰画点亮童趣,将孩子的活泼天性与奇思妙想尽数展现。
本案是园区内一套用于养老的下叠二次装修项目。了解到业主日常有挥毫泼墨、烹茶会友的雅致爱好,于是,乐大姐团队敲定宋式美学风格,力求于营造出一份兼具诗意与安逸的晚年栖居之所。
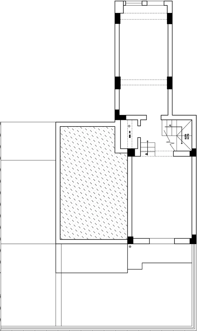
一楼原始户型图
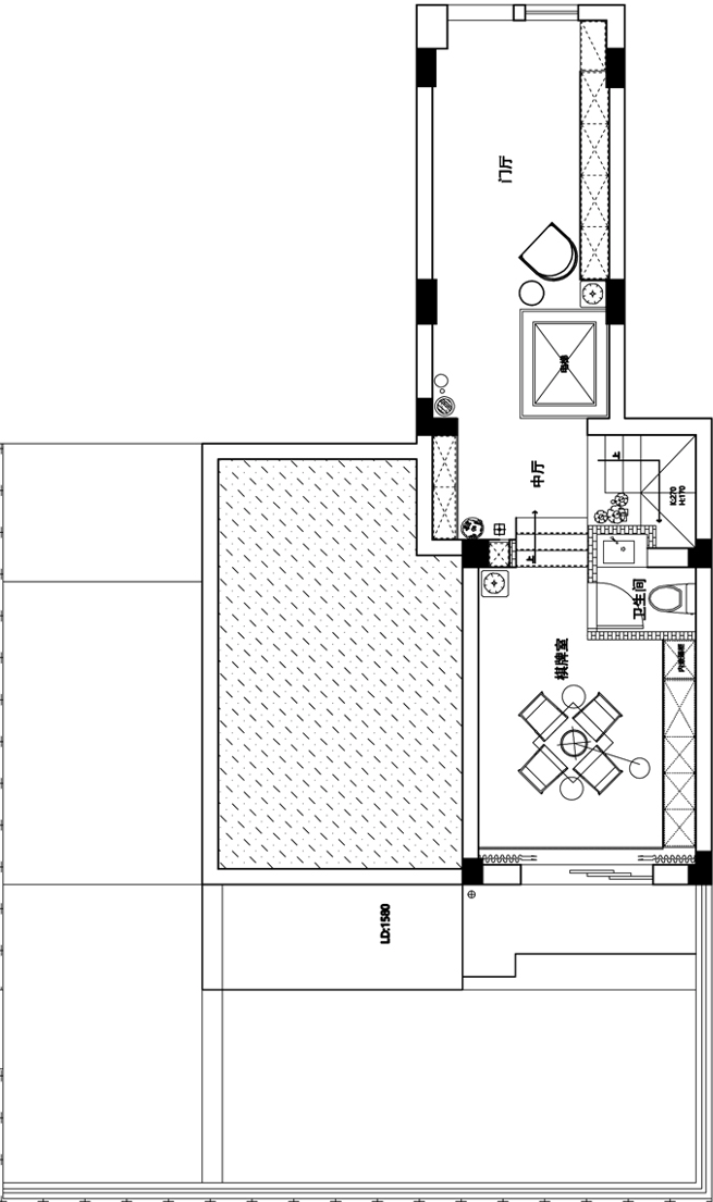
一楼改造后户型图
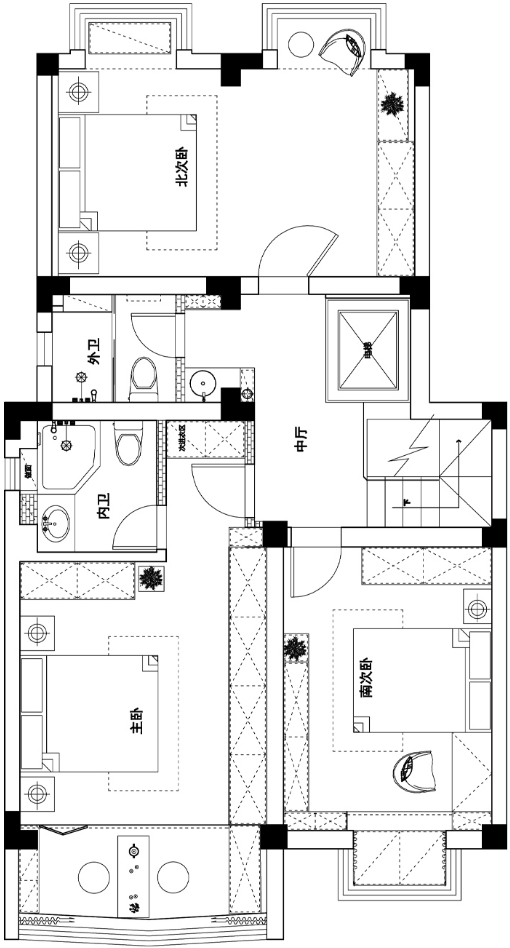
二楼原始户型图
二楼改造后户型图
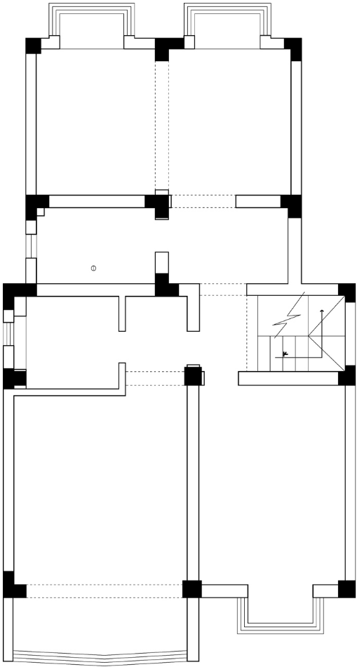
三楼原始户型图
三楼改造后户型图
①北入户门向西平移,巧妙规避入户直面电梯的户型缺陷。
②调整一楼外卫位置,向西平移以避开入户视线,告别空间局促感。
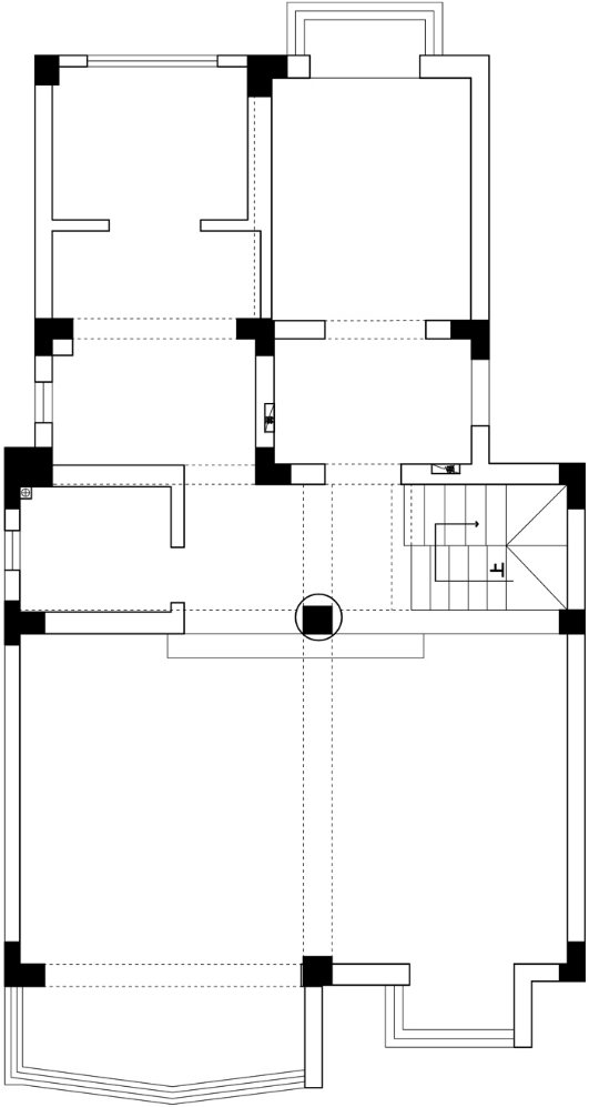
③二楼原格局里,厨房与餐厅是两个独立的狭小空间,旁侧还设有一间储藏间。我们重新规划动线与功能区,将储藏间改造为全新餐厅,同时把原本的厨房与餐厅空间打通,打造出通透的开放式厨房。
④电梯对面规划出早餐台,日常可当作补充操作区使用;南侧原餐厅因离厨房较远,被重新定位为静谧茶室。茶室与阳台打通设计,三者串联成开阔的互动空间,既增强了空间的通透感与纵深感,也让二楼的南北气流与视野实现了完全贯通。
⑤原始户型三楼是三室两卫,在新增电梯的改造中,三个间房间的功能被完整保留。北侧次卧承载休息与收纳需求,房间中部预留出灵活空间,可随心布置手工桌或帐篷,成为孩子的玩乐小天地。电梯正对面的外卫,以优化空间舒适度为出发点,升级为干湿分离设计,不仅让出电梯后的区域不显拥挤,更以实用布局提升了生活便利度。
全景图
点击左下方“阅读原文”,即可在线免费观看本案例全景图(360°)
https://vr.justeasy.cn/view/174g319875o6iz61-1764815464.html
END
往期案例回顾
设计说·第323期 | 574㎡浪漫满屋,雅奢格调~(下)
如果您觉得乐大姐说的内容很有价值
欢迎分享转发至您的朋友圈
让更多的朋友都能轻松装修,自在生活!
当然,您也可以添加乐大姐微信号13390895455
或扫描下方的二维码
说出您的装修难题、让乐大姐为您答疑解惑
不管您是装修完工了
还是即将装修的
或者正在装修的
乐大姐一定知无不言,言无不尽
我们期待与您的交流


