设计说·第332期 | 这套168㎡多巴胺风,藏着成年人的松弛解药!
2026-03-26 18:13:53
乐大姐
FM104.8《家在苏州--乐大姐说装修》栏目特邀嘉宾;
项目地址:园区东方之门 项目面积:168㎡ 项目风格:极简多巴胺 项目性质:全屋整装 项目状态:正在施工
每一套作品,都是私人定制
本案是业主早年购置的陪读房,曾因孩子上学自住多年,孩子毕业后便对外出租了。原来是欧式装修,经数年出租,不仅风格过时,装饰、功能、线路等设施也已老化。现在业主打算将其改造为儿子未来的婚房,作为乐大姐团队的老粉丝,她毫不犹豫选择我们负责此次装修。 设计采取“保留核心+全面焕新”的方案, 保留中央空调与新风系统, 其余部分全部拆至毛坯并大改格局, 最终打造出 契合年轻人喜好的极简多巴胺风居所。
MINIMALIST & DOPAMINE
——
我家的快乐
成年人的快乐,其实很简单。
就是推开家门的那一刻,
被满屋子的鲜活色彩瞬间治愈,
所有的疲惫都烟消云散。
这套案子,
完美诠释了什么叫“把快乐因子装进家里”~



一进门,就被这个巨型宝蓝色沙发狠狠拿捏!它像一块巨大的情绪磁铁,以极致的包裹感,让人忍不住即刻陷进这份松弛里。
一旁的亚克力透明茶几,以通透质感消解厚重;亮眼的红色矮凳与之碰撞出明快张力,脚下的异形地毯铺陈开斑斓色彩,更添几分鲜活。
沙发后方香芋紫墙面温柔得刚好,配上艺术涂鸦挂画和复古亚克力CD架,随性混搭反而潮范儿十足。
电视背景墙摒弃了常规设计,改用亚克力层板点缀装饰柜,既是收纳的实用载体,亦是展示生活美学的舞台。幕布垂下,便是私人影院;侧边的柜子里还藏着一个猫别墅,毛孩子也有了专属的快乐小天地。
作为推门而入的第一视角,这个空间堪称“过道式餐厅”的范本——既要承担通行功能,又要兼顾用餐与收纳,每一寸都被利用到了极致。
两侧靠墙定制柜体,厨房一侧延伸出实用台面,既是厨房操作区的补充,又承担起餐边柜的收纳与展示功能,中间还设有水槽和净水区,日常洗水果、泡茶都很方便。宝蓝、西瓜红、蛋黄等色彩肆意碰撞,让烟火日常也透着时髦腔调。
右侧,一架黑色钢琴优雅地嵌在香芋紫色的柜体里,瞬间把艺术氛围拉满。旁边就是贴心的净衣区,外套、围巾随手一放,回家的松弛感从入户刹那就开始了。
最亮眼的当然是中间那张蓝色的餐桌,像把一片晴空搬进了家里。上方的黑色吊灯利落又现代,搭配金属餐椅,氛围感直接拉满。通透的动线,让吃饭和行走互不打扰。
狭长格局决定了这里的极简配色思路,以白色与灰色为主调,最大化拉伸视觉空间,让小厨房也显得敞亮通透。设计只在细节处点缀一抹明黄,瞬间打破浅色系的单调感,为烟火日常注入灵动活力。
门洞改造是盘活整个餐厨区的关键一步:把原本朝向入户过道的门,直接改到正对餐厅、面朝客厅的位置,不仅让客厅的自然光毫无阻碍地涌入厨房,更把餐厨之间的动线缩至最短,端菜备餐一步到位。
冰箱被巧妙“请”出厨房,释放更多操作台面;原本朝着入户过道的门洞改造成玻璃开放格,既方便随手放钥匙、小物件等,又进一步提升了空间的通透度。
这个房间绝对是所有男生的梦想!它是书房,也是电竞房,亦是影音室。
核心功能区的巧思,全藏在转角大台面里——开阔的操作面积,既能支撑伏案办公的专注需求,也能满足直播看赛的电视机位,更能适配电竞开黑的肆意操作,三种模式无缝切换。
台面上方的洞洞板堪称收纳神器,耳机、鼠标等小物件都能各归其位,取用超便捷;洞洞板的背景更是点睛之笔,采用肉粉渐变融合墨色的艺术漆纹理处理,与空间里特意设置的蓝色灯光碰撞出独特的视觉层次感,高级又吸睛。
嵌入的呼吸灯模块自由切换光影氛围,氛围感直接拉满。靠墙打造一组超薄开放格,专门陈列业主的心爱藏品;一旁的沙发床灵活可变,来客留宿、午后小憩都能轻松应对。墙面的超级玛丽立体装饰,瞬间唤醒童年记忆,让硬核的功能型空间多了几分俏皮感。
公共区域足够热烈,私密空间则回归了平静温柔。深浅蓝+纯净白打底,床头彩色阅读灯一开启,松弛睡眠氛围直接拉满。
淡奶油黄的床尾柜、墙面的可爱装饰组画,撞上亮眼的造型床头柜,甜而不腻的零星跳色,瞬间消解全天疲惫。
细节处藏着满满巧思:床尾的衣架方便随手挂放衣物,实用又贴心;两组L型开放衣帽间替代了封闭柜体,彻底告别拥堵憋闷的收纳烦恼;卫生间门调整至侧面,门边点缀装饰性氛围夜灯,入厕动线安全也有仪式感;渐变色玻璃隔断既划分出衣帽间,又保持了空间的通透性。
整个主卧套房将治愈感与实用性完美融合,每一处都透着松弛惬意的生活气息。
哑光米色砖通铺,给长条形暗卫披上一层柔和滤镜,既提亮了采光,又用纯色视觉魔法拉宽了局促的空间感。
薄荷绿洗衣柜是藏不住的小心机,搭配彩色毛巾架的点缀,瞬间打破暗卫的沉闷感;悬浮双台盆+抽屉收纳,把双人洗漱的便利和零碎杂物的收纳需求,一并妥善解决。
没有独立阳台也不怕,设计将洗烘套装直接安家卫生间,再在上方规划了一小块晾晒区,烘干的衣物随手挂着透透气,完美解决晾晒难题,也让过道更显通透。
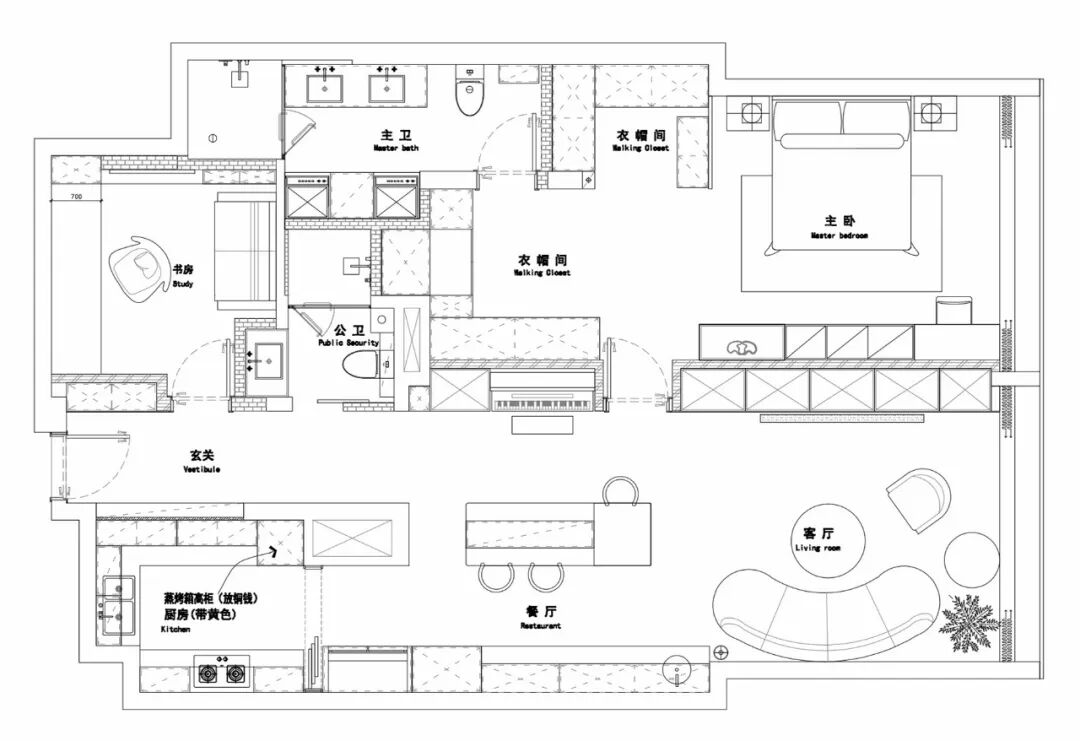
① 原朝西厨房门改至朝北,正对客餐厅,为无窗厨房借采北向自然光;利用入户过道非承重门洞墙,定制内嵌柜体,扩充入户收纳;结合不可改动的电箱区,划分中西厨功能,冰箱外置,让厨房空间更规整,动线更清晰。
② 主卧门洞从电视背景北侧移至南侧,居于户型中轴,优化居家动线;采用隐形门设计,让整面背景更显规整大气。餐厅利用非承重墙体向主卧拓展部分空间,打造钢琴区,与电视背景墙齐平,让空间更协调。
③ 次卧改造为电竞房,打造小业主的娱乐天地。
④ 外卫借主卫、书房部分空间,扩容后实现功能齐全的干湿分离;内卫并入南次卧卫生间空间,打造集双台盆、洗烘晾晒区于一体的多功能主卫,解决全屋无晾晒区的痛点。
⑤ 打掉主卧南面无窗独立衣帽间的非承重墙体,设计成两个开放式L型衣帽间,极大改善空间的采光与通透感。
END
往期案例回顾
设计说·第331期 | 1010㎡独栋桃花源,宅中有诗,屋中有画!(下)
设计说·第330期 | 287㎡张家港大平层,于极简处,见奢华风骨!
设计说·第329期 | 265㎡下叠拆光重塑,宋式美学入梦来!
如果您觉得乐大姐说的内容很有价值
欢迎分享转发至您的朋友圈
让更多的朋友都能轻松装修,自在生活!
当然,您也可以添加乐大姐微信号13390895455
或扫描下方的二维码
说出您的装修难题、让乐大姐为您答疑解惑
不管您是装修完工了
还是即将装修的
或者正在装修的
乐大姐一定知无不言,言无不尽
我们期待与您的交流


