设计说·第334期 | 为了装188㎡大平层,他们从常州到苏州?看完我懂了!
2026-03-26 18:21:24
乐大姐
FM104.8《家在苏州--乐大姐说装修》栏目特邀嘉宾;
这里,空间以设计回应期许,用细节盛装日常。
本案位于常州溧阳,业主买这套大平层是为了改善家人的生活品质,因此对设计、施工和家居配置的要求很高。看多了身边朋友装修走弯路,自己又不懂,所以他们对装修团队的诉求很明确:既要省心省力,不用在材料挑选、施工对接等琐事里耗费精力,又要兼顾全家人的居住需求,打造一个长久舒适的家。偶然关注到乐大姐团队,哪怕隔着一百多公里,他们也坚定选择奔赴,只为将家交付给懂生活、有落地实力的专业团队。
风格上,业主偏爱简约低调、不繁琐的空间质感,更强调家的温馨,拒绝冰冷的极简腔调。因此,我们为其量身打造了这套意式极简风,让简约线条与温润质感完美相融。
好的设计,从来不是元素的简单堆砌,而是把平平无奇的户型,变成处处藏着惊喜的家。
一进门,意式格调扑面而来。艺术挂画衬着深棕木饰面与长城板相拼的背景墙,极简肌理里满是高级感。然而谁能想到,本案原始户型里,根本没有玄关!设计巧改东南次卧房门朝向,才硬是“挤”出了这片仪式感十足的空间。
客厅以居中对称为核心巧思,不仅抚平了空间原本的视觉失衡,更用细节堆砌出意式极简的质感密码。
电视背景采用「悬浮大理石+内嵌电视」的点睛设计,大花纹理石材搭配底部黑色地台,中间嵌入电子壁炉,背后棕色长城板呼应整体调性,暗藏的灯带勾勒出利落轮廓;沙发背景墙对应增设造型落地灯,与电视墙隐形门隔空呼应,沙发与电视严格对位,让空间秩序感拉满。
因阳台顶面承重结构不可拆除,设计便以斜面处理自然衔接,过渡处嵌入灯带,与电视背景/沙发背景的灯带形成联动,让线面衔接更显高级层次感,既保留结构安全,又让空间通透无割裂。
家具搭配直击审美核心:黑色皮质沙发奠定沉稳基调,搭配白色大理石茶几,冷暖碰撞间拉升档次;再以棕色金属单椅、个性边几与造型落地灯作为点缀,每一件单品都暗藏用心,让松弛感与秩序感完美融合。
餐厅与北阳台无缝打通,直接拉伸空间纵深感,优化通风与采光。设计顺势采取餐岛一体处理,并增设西厨区,既完美弥补了厨房内置冰箱导致的台面不足问题,又扩容了储物空间,让日常备餐、小聚闲谈更显从容。
厨房采取撞色设计,哑光黑橱柜与木纹质感的下柜形成层次分明的视觉对比,既保留了意式极简的清冷高级感,又以温润木色中和了深色的冷峻。
与公区自带简奢质感的意式极简风不同,主卧是女业主更喜欢的法式浪漫,浅白底色搭配精致石膏线,温润的鱼骨拼木地板铺垫肌理,再以焦糖跳色与艺术感装饰柜点睛,每一处细节都透着让人卸下疲惫的温度。
床尾定制的一整排一体化柜体,集梳妆台、衣柜与次净衣柜于一体,既大幅扩容储物空间,又完整保留了卧室开阔通透的原本尺度,无一丝割裂感,让舒适实用与温柔氛围完美相融,适配业主夫妻两人日常居住需求。
主卫延续主卧柔和米色调,搭配通铺的哑光砖,营造出温馨舒适的氛围。靠窗设淋浴房,便于通风;砖砌大理石铸铁嵌入式浴缸,杜绝卫生死角;双台盆设计,让日常洗漱更高效便捷。
儿子房以亮眼的克莱因蓝为主色调,瞬间为空间注入满满活力。展示格、杂志架错落排布,整面黑板墙随性又实用,既能满足孩子的收纳与阅读需求,又能承载涂鸦、学习的趣味时光,让成长空间兼具颜值与功能性。
户型改造是这个房间的点睛之笔,原本的卫生间是暗卫,通风采光条件差,我们果断将之拆除,改造成背靠背储物柜、衣柜与书柜的组合,还延伸出独立阅读区,让每一寸空间都物尽其用。
大儿子房,柔和的米色调为空间铺就了温暖底色,利落线条与简约软装碰撞出舒适且有质感的居住氛围。
连通阳台的移门被改造成窗户,在保障隐私的同时,也让阳光与清风毫无阻碍地流淌进来。窗内侧的一整面长书桌,极大满足了学习的需求,上方吊柜既能收纳书籍,也能陈列手办,实用与趣味在此完美结合。
北房间以实用为核心,榻榻米、定制衣柜与书桌一体化设计,最大化利用空间。充足的储物功能满足日常收纳需求,同时兼具睡眠、学习与休闲功能,本身就是一个功能完整的卧室。
外卫纳入原空调外机区域实现扩容,空间更显宽敞。干区增设双台盆,各功能区布局清晰,使用舒适便捷。
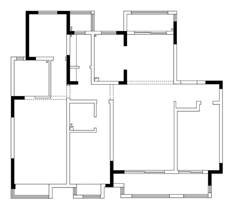
原始户型
平面方案
① 原入户无玄关背景,仅有鞋柜,通过调整东南次卧房门朝向,在入户左侧规划独立收纳间(可存放鞋子、次净衣、杂物,同时容纳强弱电箱),而原鞋柜处改造为独立玄关,提升归家仪式感;同时,借助一梯一户优势在电梯间再做一组鞋柜,进一步扩容入户收纳。
② 将南阳台(客厅相连)与北阳台(餐厅相连)分别扩入室内,不仅拓宽了客厅、餐厅的使用空间,让公共区域更显开阔通透,还为功能布局提供了更多可能性,契合大平层的舒适尺度需求。
③ 主卧调整房门位置,将床头由朝西改为朝东,解决内卫房门对床的问题;床尾定制一整排柜体,增加储物功能且不割裂空间,保持开阔大气。
④ 大儿子房取消与阳台相连的移门,改为窗户保证隐私性,窗户内侧增设长书桌,搭配吊柜用于收纳手办,兼顾学习与兴趣储物需求。
⑤ 小儿子房取消原有暗卫,优化空间布局,让卧室功能更纯粹,提升居住舒适度。
⑥ 外卫纳入原空调外机区域实现扩容,空间更显宽敞,干区得以增设双台盆,满足双人同时使用需求。
点击左下方“阅读原文”,即可在线免费观看本案例全景图(360°)。
END
往期案例回顾
设计说·第333期 | 143㎡现代中古,如此优雅,怎能不爱!
设计说·第332期 | 这套168㎡多巴胺风,藏着成年人的松弛解药!
设计说·第331期 | 1010㎡独栋桃花源,宅中有诗,屋中有画!(下)
设计说·第330期 | 287㎡张家港大平层,于极简处,见奢华风骨!
设计说·第329期 | 265㎡下叠拆光重塑,宋式美学入梦来!
如果您觉得乐大姐说的内容很有价值
欢迎分享转发至您的朋友圈
让更多的朋友都能轻松装修,自在生活!
当然,您也可以添加乐大姐微信号13390895455
或扫描下方的二维码
说出您的装修难题、让乐大姐为您答疑解惑
不管您是装修完工了
还是即将装修的
或者正在装修的
乐大姐一定知无不言,言无不尽
我们期待与您的交流


