设计说·第335期 | 152㎡法式浪漫,无关年龄,只关热爱!
2026-03-26 18:25:39
乐大姐
FM104.8《家在苏州--乐大姐说装修》栏目特邀嘉宾;
所谓理想的改善房,从来不是面积的简单扩容,而是对长久生活的深度适配。本案通过软装改造,将千篇一律的流水线精装房,雕琢成满溢浪漫的法式家。
提起法式风,很多人会下意识觉得
是年轻人的专属。
但这对中年夫妻却有着自己的坚持:
浪漫从不是年龄的附属品,
而是生活本该有的底色。
他们要的法式,不是浮夸的装饰堆砌,
而是藏在细节里的温柔~~
一脚踏进玄关,这份复古又雅致的情调便让人挪不开眼。原本仅有鞋柜功能的入户空间,只因调整了南次卧的开门方向,便凭空腾出一整面造景天地。
复古花纹的端景柜稳稳立在中间,搭配自带柔光的拱形造型墙,暖黄灯光漫过纹理壁纸,还没往里走,就被这股法式仪式感裹了个严实。
往里走便是客餐厅,清浅的米白艺术漆铺满墙面,像被温柔的云朵轻轻包裹。特意点缀的墨绿,是空间里的点睛之笔——既呼应了电视背景上的隐形门,又以高饱和度色调中和了浅白的轻盈,添上恰到好处的重量感,优雅复古又不失自然灵动。
将中央空调机位改至过道区域,既避免了吊顶下压沙发的局促感,又让灯具得以精准对位不偏移,搭配艺术感吊灯和雕花灯盘,法式腔调瞬间拉满。
客厅与阳台之间打通,复古花砖从脚下一路延伸到窗边,阳光透过纱帘漫进来,落在弧形软包沙发上,落在黑白条纹的地毯上,每一寸光景都透着熨帖的浪漫。
窝在沙发上晒晒太阳,或是去阳台看书喝茶,一下午的时光便在这般松弛里慢悠悠地漾开了。
浅白底色铺陈出餐厅的清爽基调,一抹复古墨绿作为呼应色点缀其间,与客厅的雅致气韵一脉相承。圆桌消弭了棱角的冷硬,将三餐四季的烟火气与相聚的暖意轻轻收拢。
餐边柜的设计藏着巧思:柜门以柔婉的拱形勾勒出法式优雅,与全屋的弧形元素相映成趣;同时将蒸烤箱外移内嵌其中,既不破坏柜体的美观性,又巧妙释放了厨房的操作空间,让实用与颜值两全。
主卧套房更是把“舒适”二字刻进了细节里:设计通过调整门与床头的位置,优化了空间格局、功能与动线,不仅让整体尺度更显宽敞通透,更预留出充裕的收纳空间。
入户一侧立起的精致屏风,不着痕迹地化解了开门见床的局促,守护了空间隐私,又添了几分雅致韵味。
法式浪漫的细节更是铺满了每一处角落:花朵造型的吊灯晕开柔和的光晕,柔美的石膏线勾勒出墙面的层次,温柔的床品裹挟着慵懒的气息;清晨的第一缕阳光斜斜掠过飘窗台,刚好落在梳妆镜上,连晨起梳妆都成了一件浸着甜意的幸事,满室都氤氲着松弛又浪漫的氛围。
北次卧并入主卧后,化作多功能弹性区:既是收纳充足的衣帽间,也是洒满阳光的梳妆区,还能变身静谧书房,一处空间承载多重生活场景。
儿子房跳脱出全屋的法式浪漫,以现代简约的利落风格,精准贴合年轻人的审美偏好。
床背后增设的半高墙,既可化作陈列手办、挂画的床头背景,又巧妙缩短了床侧深柜的视觉进深,轻松化解压抑感;另一侧嵌入的造型独特的壁灯,与柜体形成对称呼应,平衡了空间视觉的同时,又打破了背景的单调感。
通过结构改造,我们在床尾增设一处书桌区,满足了即将步入大学的小主人的学习需求。
本案这套精装房,业主买来是计划以后养老长住的,所以对家的设计和品质有着极高要求。而开发商的标准交付,既少了他们想要的精致格调,也没考虑长久居住该有的生活细节,改造便成了必然选择。
值得一提的是,业主在距离2026年3月正式拿房还有大半年,便早早找到关注已久的乐大姐团队,希望我们为他们打造出理想中的养老生活。如今方案落定,业主满心期待着交房那日,便能即刻启动装修,早日住进这份量身定制的美好里。
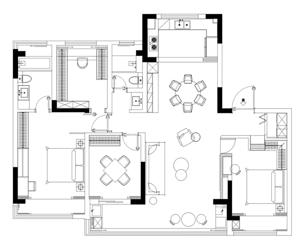
原始户型图
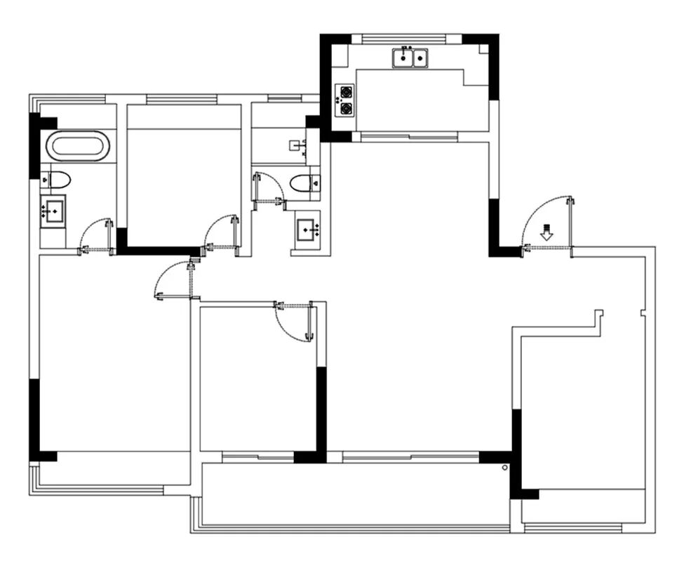
改造后户型图
① 原来南次卧门是正对入户的,将之改成朝向客厅,同时采用隐形门设计融入电视背景墙,这样不仅入户区域新增了独立储物间+玄关背景,丰富了入户收纳空间,强化了空间隐私性与仪式感,南次卧内的空间也变大了,功能也更齐全,而隐形门的处理也让视觉更整体。
② 拆除原阳台移门,将阳台空间纳入客厅,进一步拓展公共区域面积。
③ 因业主对房间数量需求不多,仅需2个房间,将北次卧纳入主卧,打造成宽敞大套房;调整主卧床头朝向,避开主卫门正对床的尴尬,提升居住舒适度。
④ 将中间南次卧改造为休闲空间,适配未来养老场景,可满足打牌、聊天等需求,既灵活又实用。
点击左下方“阅读原文”,即可在线免费观看本案例全景图(360°)
END
往期案例回顾
设计说·第330期 | 287㎡张家港大平层,于极简处,见奢华风骨!
设计说·第329期 | 265㎡下叠拆光重塑,宋式美学入梦来!
设计说·第323期 | 574㎡浪漫满屋,雅奢格调~(下)
如果您觉得乐大姐说的内容很有价值
欢迎分享转发至您的朋友圈
让更多的朋友都能轻松装修,自在生活!
当然,您也可以添加乐大姐微信号13390895455
或扫描下方的二维码
说出您的装修难题、让乐大姐为您答疑解惑
不管您是装修完工了
还是即将装修的
或者正在装修的
乐大姐一定知无不言,言无不尽
我们期待与您的交流


