设计说·第337期 | 348㎡现代独栋别墅,优雅从不需要张扬!
2026-03-26 18:31:13
乐大姐
FM104.8《家在苏州--乐大姐说装修》栏目特邀嘉宾;
项目地址 / 平湖瑞园独栋别墅 项目面积 / 330.8㎡+16.7㎡ 项目风格 / 现代简约 项目性质 / 别墅整装 项目状态 / 正在施工
每一套作品,都是私人定制
推开大门的那一刻,最先打动人心的,是空间的秩序与光影的诗意。
原户型南入户直对楼梯,气场直泄、隐私性差。设计以悬浮式帕斯卡玄关为界,镂空通透、隔而不断,既藏风聚气,又不压抑采光。右侧定制的衣帽柜,让归家仪式感与实用性同步落地。
电视背景倚楼梯而设,以穿插式结构设计重塑立面:保留不可动的承重墙体,打通可优化部分,让空间纵向通透、光影自由穿行。墙面再以小帕斯卡元素点缀,与门厅背景遥相呼应——不动声色的默契,最是高级。
沙发背景借阳台打通扩容,利用原建筑凸出门垛,一体打造多层复合肌理:木饰面、长城板、展示格与留白墙面层层叠进,暖棕木调贯穿始终。深棕布艺沙发沉静松弛,一盏钓鱼灯投下温柔光影——这里不止会客,更治愈自己。
大面L型落地窗,把院子的四季和阳光一并请进了屋。晴时满室暖阳,雨时一窗烟色,惬意非常。
▂▃▅
顶面采用柔和弧形线条,
柔化空间硬朗棱角。
一抹月牙状线性灯蜿蜒舒展,如月光轻洒入厅,
让整个空间温柔又有灵气。
大尺度厨房,以两组四联动玻璃移门+中央岛台打破封闭格局,实现餐厨客三位一体联动。
双开门冰箱、蒸烤箱等高配功能一应俱全,满足中式烹饪与西式生活双重需求。暖棕木色柜体与岩板、大砖纹理自然呼应,质感统一、高级耐看,让烟火气里,也能活出仪式感。
这是整栋房子唯一“吃亏”的空间——作为餐厅,竟然没有窗。但我们的设计,换了个思路:既然没有窗,那就让灯光成为主角。
筒灯、磁吸轨道灯、线性灯在顶面墙面交织排布,明暗交错间,原本的暗厅竟然有了光影艺术馆的丰富层次。
一整排定制餐边柜横贯墙面,强大收纳将茶叶、酒、零食等悉数藏起,美观与实用兼顾。
更巧妙的是,餐厅背景墙还藏着玄机:两扇门暗藏其中,一扇通向储藏室,一扇通向小厨房,不动声色间便将功能与美学完美融合,外人几乎难以察觉。
▂▃▅
这里没有张扬的设计,
却藏着最动人的日常——三餐四季,家人围坐,
便是人间好光景。
一层尊位,专为长辈颐养而设。空间简洁沉稳静谧,自然光与庭院景致温柔入室,不出门亦拥自然意趣,是三代同堂里最贴心的孝心表达。
现代简约的底色里,藏着不将就的高级感。
背景墙以木饰面、岩板、硬包等多元材质层层递进,搭配轨道射灯塑造明暗肌理,光与材质对话,简约却极具饱满度。空间色调柔和宁静,氛围松弛治愈,不堆砌、不张扬,却处处透着品质与底气。
这是专为女儿成长而打造的温柔小天地,独立学习区、休闲角、衣帽间一应俱全,满足成长中的每一种需求。
整个空间素雅宁静,一幅亮色挂画瞬间点亮空间,温柔、灵动、富有朝气,藏着少女的浪漫与诗意。
值得一提的是,设计师在床尾的衣帽柜上特意预留了一扇窗,将卧室与梳妆区巧妙打通,既实现了双向借光,又让两个空间视线互通,光影流转间,别有一番趣味。
以暖色调+木质感奠定温润氛围,摒弃冰冷感。借墙体巧做嵌入式壁龛,收纳隐形、整洁高级;双台盆设计,晨起从容不迫。大砖、大板吊顶、镜柜氛围灯相得益彰,小空间,亦有大宅质感。
这里是新婚的浪漫起点,也是未来小家庭的温馨主场。设计上充分保留原有优越层高,精心打造人字斜顶造型,让纵向空间更显舒展,气场通透大气。
背景墙以简洁利落的黑白线条勾勒层次,下稳上透,线条感清晰,整体空间简约时尚又富有辨识度。搭配开阔尺度与温柔光影,让每一处日常都被仪式感包裹,舒适与美感兼具。
这是为未来小朋友精心打造的成长空间,每一处细节都藏着家人满满的爱意与期许。全屋采用弧形柔化处理,墙面、吊顶皆以圆弧包裹,像被温柔环抱,给予孩子满满的安全感。
整个空间色调柔和、光线舒缓、材质亲肤,为孩子营造出治愈安心、又充满想象力的小世界。
本案业主关注《乐大姐说装修》多年,这次终于轮到自己家装修。房子位于甪直,买在这里,是因为受够了原先住处的热闹嘈杂,就想换个安静的环境。业主一家三代同堂,儿子即将结婚,有着长久的居住计划,因此对居住品质自然有很高的要求。风格上,乐大姐团队为业主量身定制了现代简约——用简洁的设计语言,装下一家人的生活习惯,也让每一代人都住得舒服。
一楼原始户型图
一楼改造后户型图
二楼原始户型图
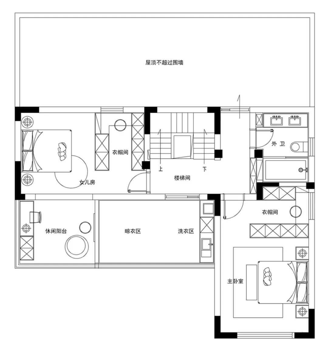
二楼改造后户型图
三楼原始户型图
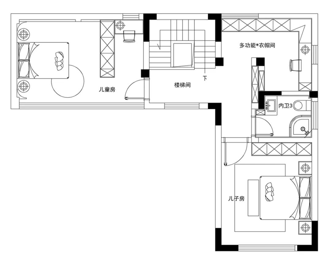
三楼改造后户型图
本案原始户型结构零散、空间琐碎、功能不全、动线混乱,因是独栋,乐大姐团队将之打散,重组,用设计重塑空间,把每一处都还给生活。最后呈现的样子:三代同堂,各得其所,每个人都住得舒服。
点击左下方“ 阅读原文 ”,即可在线免费看本案例 全景图(360°)。
END
往期案例回顾
设计说·第336期 | 这套243㎡下叠墅,竟然开出一朵雅奢之“花”!
设计说·第335期 | 152㎡法式浪漫,无关年龄,只关热爱!
设计说·第334期 | 为了装188㎡大平层,他们从常州到苏州?看完我懂了!
设计说·第333期 | 143㎡现代中古,如此优雅,怎能不爱!
设计说·第332期 | 这套168㎡多巴胺风,藏着成年人的松弛解药!
设计说·第331期 | 1010㎡独栋桃花源,宅中有诗,屋中有画!(下)
设计说·第330期 | 287㎡张家港大平层,于极简处,见奢华风骨!
设计说·第329期 | 265㎡下叠拆光重塑,宋式美学入梦来!
如果您觉得乐大姐说的内容很有价值
欢迎分享转发至您的朋友圈
让更多的朋友都能轻松装修,自在生活!
当然,您也可以添加乐大姐微信号13390895455
或扫描下方的二维码
说出您的装修难题、让乐大姐为您答疑解惑
不管您是装修完工了
还是即将装修的
或者正在装修的
乐大姐一定知无不言,言无不尽
我们期待与您的交流


